| MLS # | 955868 |
| Details der Immobilie | Außenbereich: 0.28 Acres (DOM): 1 days |
| Steuern (jährlich) | $13,983 |
![]() |
ALLE INVESTOREN AUFGEPASST
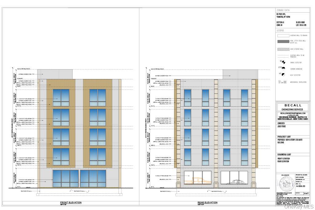
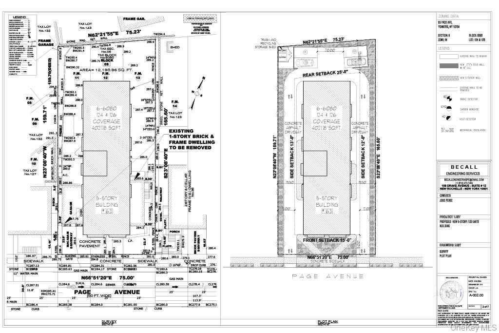
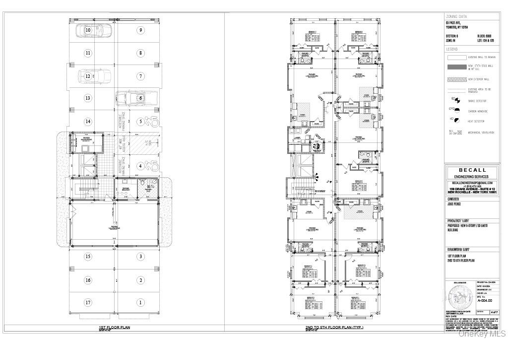
Entwicklungsmöglichkeit in Yonkers. Die Immobilie wird mit akzeptierten architektonischen Plänen und einem vollständigen genehmigten Set für die vorgeschlagene Neubebauung verkauft.
Die prognostizierte Mieterlöse basierend auf den genehmigten Plänen betragen ca. 739.000 USD jährlich (der Käufer muss alle Prognosen unabhängig überprüfen).
Wir können alle Dokumente zur Verfügung stellen, die uns übergeben wurden, einschließlich architektonischer Materialien. Der Käufer hat außerdem die Möglichkeit, bei Bedarf mit einem erfahrenen Architekten, Auftragnehmer und Baufinanzierungsbeamten in Kontakt gebracht zu werden, die mit dem Projekt vertraut sind. Ein verifiziertes Kostenschätzungsangebot für die Bauarbeiten ist ebenfalls auf Anfrage erhältlich.
Der Käufer muss seine eigene Due Diligence durchführen.
CALLING ALL INVESTORS
Development opportunity in Yonkers. Property is being sold with accepted architectural plans and a complete approved set for proposed redevelopment.
Projected rent roll based on approved plans is approximately $739,000 annually (buyer to independently verify all projections).
We can provide all documentation that has been provided to us, including architectural materials. Buyer also has the option to be introduced to an experienced architect, contractor, and construction loan officer familiar with the project, if desired. A verified construction cost estimate is also available upon request.
Buyer must perform their own due diligence. © 2025 OneKey™ MLS, LLC







